- Wedding Vendors/
- Wedding and reception venues/
- Colorado venues/
- Georgetown, CO venues/
- Loveland Ski Area
Loveland Ski Area
Select services venue
The venue will provide the space, plus a few extras.
Full wedding (ceremony and reception) pricing
Starting at $4,000
Catering services pricing
$50 per person for off-peak dates, with a minimum total spend of $1,250
Guest capacity
Up to 250 seated guests
About this venue
High on the Continental Divide, Loveland Ski Area offers a breathtaking alpine retreat—an idyllic setting for an unforgettable mountain wedding. Couples can exchange vows over 10,000 feet with the dramatic peaks of the Arapaho National Forest as their backdrop. The Valley lodge features warm, wood-accented interiors and an expansive patio perfect for ceremonies, sunset receptions and starlit celebrations. With its blend of natural beauty and high-altitude charm, Loveland provides a serene, elegant escape for couples seeking a truly elevated 'I do.'
Our event spaces
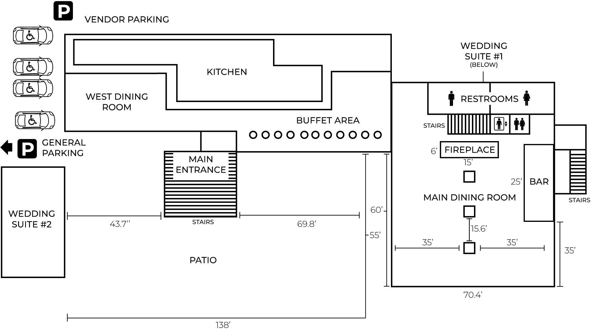
Loveland Valley Lodge
The Valley Lodge at Loveland: Elegance with Views of the Continental Divide.
Perched at the edge of the alpine wilderness, the Valley lodge is a warm and inviting mountain retreat that blends rustic charm with understated elegance. Inside, soaring timber beams, natural stone accents, and expansive windows create a cozy yet grand atmosphere, offering uninterrupted views of the surrounding peaks. Whether hosting an intimate gathering or a grand celebration, the lodge provides a stunning, high-altitude setting where comfort meets Colorado mountain beauty.
Guest capacity
25-250 Seated
25-300 Standing
Ideal for
Wedding ceremony, Wedding reception, Rehearsal dinner, Wedding shower, Welcome party, Cocktail hour, Engagement party, Other
Guests often feel this space is
“Relaxed”
Room cost
4000
Loveland Valley Lodge
The Valley Lodge at Loveland: Elegance with Views of the Continental Divide.
Perched at the edge of the alpine wilderness, the Valley lodge is a warm and inviting mountain retreat that blends rustic charm with understated elegance. Inside, soaring timber beams, natural stone accents, and expansive windows create a cozy yet grand atmosphere, offering uninterrupted views of the surrounding peaks. Whether hosting an intimate gathering or a grand celebration, the lodge provides a stunning, high-altitude setting where comfort meets Colorado mountain beauty.
Guest capacity
25-250 Seated
25-300 Standing
Ideal for
Wedding ceremony, Wedding reception, Rehearsal dinner, Wedding shower, Welcome party, Cocktail hour, Engagement party, Other
Guests often feel this space is
“Relaxed”
Room cost
4000
Available services that can be provided by Loveland Ski Area
Services & amenities
- Bar services
- Catering services
- Clean up
- Dressing room / Bridal Suite
- Event coordinator
- Event staff
- Transportation
- Wheelchair accessible
- Wifi
Reviews
Write a review5.0 out of 5
3 reviews
Bride
We could not recommend Loveland Ski Area more! From the moment we were interested the team went above and beyond! They made planning a breeze and was there to answer any questions. The day of the wedding everything went smoothly due to the amazing team at Loveland! The space felt bright, warm, and welcoming while allowing you to make the space your own! We are so happy that we chose to get married at this location and have been recommending it to everyone ever since! Overall an amazing venue and an amazing team!
Love at Loveland
The team at Loveland Ski Area truly went above and beyond to make our wedding day perfect! Their communication throughout the planning process was prompt, clear, and professional. The venue itself was clean, grand, and beautiful - it really was the best day of our lives. We were especially grateful for the little things they did, like stopping my wife from cleaning at the end of the night and taking over, and driving a missing bridesmaid up to Loveland Pass for pictures. Their meticulous attention to detail and warm hospitality made our wedding celebration seamless and unforgettable.
Response from vendor•May 29, 2025Kyle, we appreciate the fantastic review! Thank you for choosing Loveland to host your wedding, working with you and your lovely wife was our pleasure, and we agree, it was fun! We enjoyed assisting you both to help your dream come alive and are so glad to hear you both had the best day. We look forward to seeing you both up here again for some winter fun as the snow flies! — The Loveland Events TeamMother of the bride
Loveland Ski Area was an outstanding venue for our wedding! From the moment we first inquired, their communication was excellent and they were incredibly responsive to all of our questions. On the day of the event, the space was large but felt cozy and clean, and the staff was friendly and made sure everything was set up exactly as we had requested. We honestly don't know why anyone would choose to have their wedding anywhere else - the venue was beautiful, the staff was outstanding, and there was zero traffic noise, which was a huge plus. We are so grateful to Loveland Ski Area for helping make our special day absolutely perfect!
Response from vendor•May 29, 2025Thank you so much for your kind words and for trusting us with such a special day! We’re absolutely thrilled to hear that your daughter’s wedding was everything you hoped for. It was a true pleasure working with you and your family, and we’re so glad the venue and our team helped make the day unforgettable. Your feedback means the world to us, and we’re honored to have been a part of such meaningful memories. — The Loveland Events Team
Explore other vendors serving Georgetown, CO
- Alumni Productions
- Zayd's Beauty DALLAS TX
- Where the Wild Things Wed
- Sydney McRae Photography
- Kie Thurman Photography
- Right As Rayne Events
- Constantine Films
- Giles Ober Music & DJ Services LLC
- Jared Countryman Productions
- Rutabaga Catering
- Iconic Union
- Taylor Field Sax
Complete your dream team
- Georgetown Photographers
- Georgetown Beauty Professionals
- Georgetown Bands & DJs
- Georgetown Florists
- Georgetown Caterers
- Georgetown Planners
- Georgetown Cakes & Desserts
- Georgetown Videographers
- Georgetown Bar Services & Beverages
- Georgetown Officiants
- Georgetown Event Extras
Other venues in Georgetown
- Blackstone Rivers Ranch
- The Lost Dutchman Event Center
- Hummingbird Hill
- The Copper Lodge
- Pikes Peak Ranch
- Idlewild Ridge
- Illuminations at Arrow Vista Ranch
- Deer Creek Valley Ranch Wedding & Event Venue
- Mountain View Ranch By Wedgewood Weddings
- Bison Peak Lodge at Puma Hills
- Ute Pass Cultural Center
- Arcadia Villa Ranch & Retreat
Other wedding services nearby
- Littleton, CO Wedding Beauty Professionals
- Colorado Springs, CO Wedding Cakes & Desserts
- Colorado Springs, CO Wedding Florists
- Littleton, CO Wedding Photographers
- Colorado Springs, CO Wedding Beauty Professionals
- Colorado Springs, CO Wedding Photographers
- Golden, CO Wedding Photographers
- Colorado Springs, CO Wedding Caterers
- Colorado Springs, CO Wedding Planners
- Colorado Springs, CO Wedding Bands & DJs
- Littleton, CO Wedding Cakes & Desserts
